Noordwijk

Rembrandtweg 30

€ 17.500 p.m. ex.
view 24 photos
Joshua Holsnijders

Joshua Holsnijders

Rental agent

Description

Unieke hypermoderne villa te huur in de fraaie Noordwijkse Zuidduinen op loopafstand van het strand. In dit recent en onder architectuur (van Manen) gebouwde luxueuze en vrijstaande woning met poolhouse zijn kosten noch moeite gespaard. De villa heeft een zeer unieke ‘Ibiza-vibe’ en geeft het gevoel alsof je het hele jaar op vakantie bent.

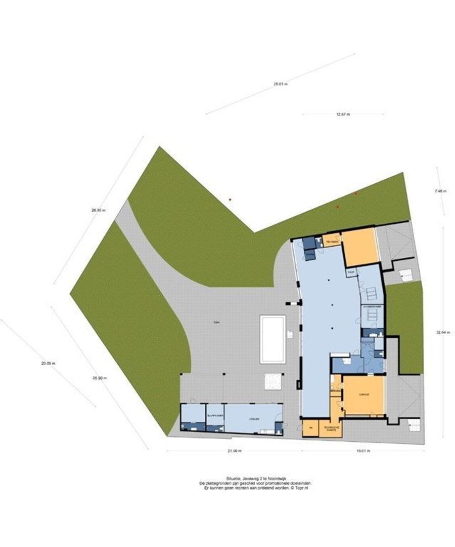
Op de Nederlandse markt komt zelden zo’n uniek object te huur. De woning en bijgebouwen zijn in totaliteit voorzien van meerdere woon- en verblijf kamers (waaronder een fraaie bibliotheek), 7 slaapkamers, 6 badkamers, 8 toiletten, gastenkamers en/of meeting rooms eventueel met gym, buiten zwembad, jacuzzi, sauna met fraai uitzicht op de tuin en twee inpandige garages met plek voor 4 auto’s. Tevens is het mogelijk om op eigen terrein extra auto’s te parkeren. Daarnaast is de woning gelegen op een van de veiligste plekken van Zuid-Holland: er rijdt ’s nachts beveiliging rond, er zijn meerdere camera’s en een hypermodern alarmsysteem. De hoofdslaapkamer is uitgerust met een saferoom. De ruime en zonnige tuin is zeer privé te noemen en fraai aangelegd. Bovendien heeft de woning twee grote dakterrassen, waarvan een op het dak van het huis met prachtig uitzicht (op zee). De woning is volledig geïsoleerd en voorzien van zonnepanelen waardoor de woning relatief weinig energie verbruikt.

De woning ligt op een van de meest gewilde locaties van Nederland, op loopafstand van het strand, duinen, centrum van Noordwijk en er zijn diverse restaurants en faciliteiten in de buurt. De woning ligt zeer strategisch ten opzichte van zowel Den Haag/Wassenaar/Leiden als Amsterdam/Schiphol. Zowel Den Haag als Amsterdam zijn op 40 minuten rijden afstand en de luchthaven is binnen 30 minuten rijden te bereikenDe Amerikaanse Internationale School ligt op slechts 20 minuten rijden en er rijdt ook een schoolbus die kinderen in Noordwijk ophaalt.

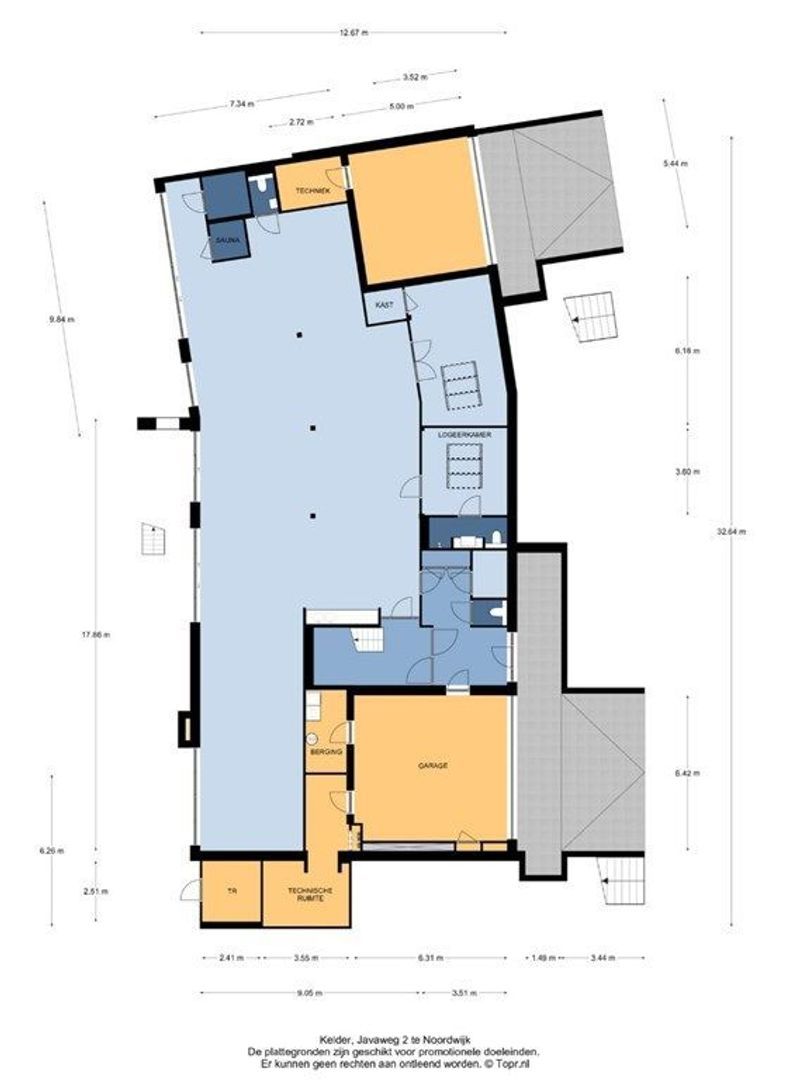
De indeling van de villa is speels en er zijn meerdere indelingen op maat mogelijk. De hoofdvilla heeft een indrukwekkend open trappenhuis naar de overloop over 3 woonlagen. De tuinverdieping herbergt een grote ruimte die voorheen gebruikt werd als kantoor en fitnessruimte, maar ook kan worden gebruikt als (extra) woonkamer. Het kantoor is afgescheiden van het woonhuis en kan alleen worden betreden met vingerafdruk herkenning. Het kantoor heeft een eigen ingang en een gastenkamer met eigen badkamer. De riante en ruime (voorheen) fitnessruimte beschikt over een wellness, sauna met extra infrarood functie en Turks stoombad. Op deze verdieping bevinden zich ook een extra keuken en een logeerkamer met een eigen badkamer en toilet.

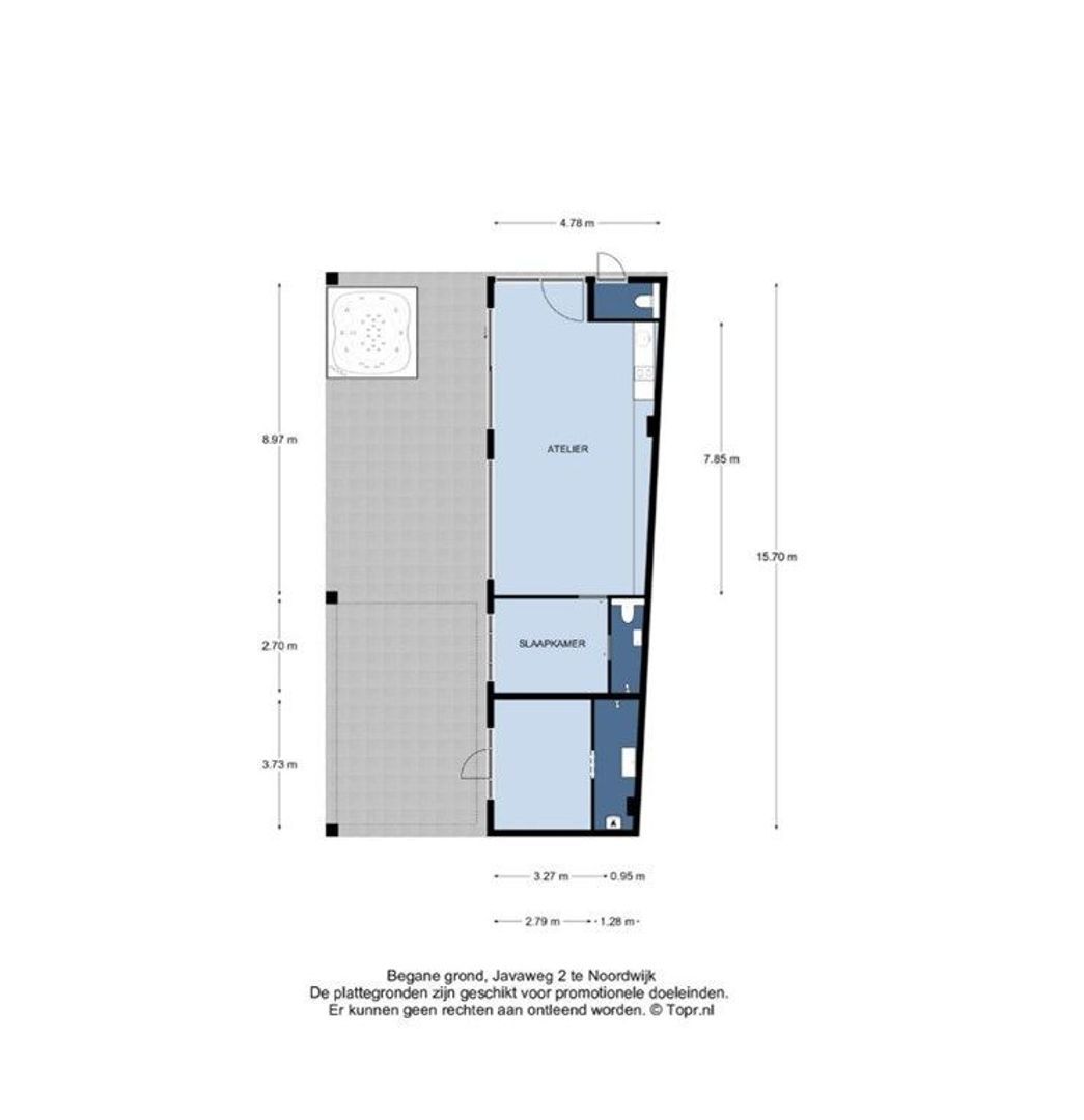
In de aangrenzende tuin ligt het poolhouse voorzien van een slaapkamer met ensuite badkamer, een keuken en een groot terras met een verwarmd en groot zwembad van 12 bij 4 meter met jetstream en roldek, separate ruime (buiten)jacuzzi en buitendouche. Op zomerse dagen lijkt het alsof je op Ibiza verblijft! Eveneens is op deze verdieping de garage gelegen met plaats voor 2 auto’s die inpandig kunnen parkeren, en 2 parkeerplaatsen op de oprit. De vrijstaande gastenvilla biedt ook 2 parkeerplaatsen inpandig en 2 op de oprit en kunnen er meerdere auto’s buiten op eigen terrein worden geparkeerd via een achteringang op de Javaweg.

Op de eerste verdieping zijn drie luxe slaapkamers gesitueerd waaronder een zeer ruime master bedroom met walk-in closet, die ook is gebouwd als "saferoom"en een zeer luxueuze en ruime badkamer. Deze is voorzien van een fraai vrijstaand bad, dubbele inloop douche en twee wastafels. De inloopkasten zijn eveneens indrukwekkend en zeer fraai afgewerkt. Aangrenzend aan de master bedroom is een prachtige bibliotheek met een indrukwekkende trappartij met vide die leidt naar de bovengelegen woonkamer. De andere twee slaapkamers hebben beiden hun eigen inbouwkasten en ensuite badkamer en apart toilet.

Op de tweede verdieping bevindt zich de grote woonkamer met woonkeuken met twee gashaarden. Door de enorme hoeveelheid ramen heb je ontzettend veel licht en uitzicht in deze kamer. De keuken is voorzien van alle gemakken en luxe apparatuur (waaronder een royale wijn klimaatkast en twee afwasmachines) die een luxe villa nodig heeft. De woonkamer loopt door naar het grote terras met open haard waar je heerlijk kunt zitten in alle privacy. Op de derde verdieping is er een prachtig dakterras met adembenemend uitzicht, ideaal om na te genieten van een zomerse dag.

Woorden schieten te kort om de woning te beschrijven. Op verzoek zijn eventueel meerdere foto’s en een (drone) video op te vragen en specifieke vragen te beantwoorden. De woning kan zowel gestoffeerd als gemeubileerd verhuurd worden. De huurtermijn is bespreekbaar, zowel kort als langdurig, alles in overleg met de verhuurder. Bezichtigingen kunnen worden aangevraagd via ons kantoor Verra Makelaars (Den Haag).

Bijzonderheden:
- De villa is voorzien van state of the art domotica,
- Automatische verlichting, door gehele huis inbouwspots, wandverlichting en plafondspots,
- Vloerverwarming (per ruimte regelbaar),
- Vloeren zijn afgewerkt met op de woonverdieping visgraat eikenvloer en de overige vloeren zijn gietvloeren.
- Keyless entry rondom met fingerscan
- Elektrisch entree hekwerken
- Alle vertrekken beschikken over televisie- en internetaansluitingen.
- Er zijn veel zonnepanelen aanwezig
- Centrale verwarming met WKO (Warmte Koude Opslag)
- Aansluiting voor heaters, windschermen en zonwering, bij de pool zijn deze wind gestuurd. Elektrische ‘shades’ op alle ramen die via domotica bediend worden
- In totaal zijn er in de villa’s drie wasmachines en drie droger aansluitpunten beschikbaar
- Rondom een onderhoudsarme (duin)tuin, beregeningsinstallatie en ruime terrassen op zuid en west.

Afmetingen:
- Hoofdvilla inclusief poolhouse: 626 m2 woonoppervlakte

Security:
- Beveiligingsbedrijf rijdt ‘s nachts rondes
- Camera’s rondom het huis die 24/7 opnemen
- Electrische hekken rondom
- Inbraak werend glas en voorzien van alarmdetectie
- Hondenkennels aanwezig
- Saferoom aanwezig

Nadere informatie:
- Beschikbaar per direct / in overleg
- de woning kan gemeubileerd of gestoffeerd worden verhuurd, alles in overleg
- Huurtermijn is flexibel en bespreekbaar
- Servicekosten van €4.000,- per maand (voorschot G/W/E, tuinonderhoud, glasbewassing etc.)
- Borgsom staat gelijk aan 2 maanden huur


* De naast gelegen villa is niet inbegrepen in de huur *
Naast de villa ligt een gastenverblijf (vrijstaande villa) met 2 slaapkamers, een badkamer en terras. De woning is ideaal voor gezinnen met nanny’s of langdurige gasten die afgescheiden en privé in en rond de woning kunnen verblijven. De gastenvilla: 88 m2 woonoppervlakte (exclusief inpandige garage)

Aan deze advertentie kunnen geen rechten worden ontleend.

Details

Acceptance

Asking price
€ 17.500 p.m. ex.
Interior
Optionally furnished
Status
Available
Acceptance
In consultation
Address
Rembrandtweg 30
Zipcode
2202 AZ
City
Noordwijk

Build

House type
Villa, Detached house
Build type
Existing
Build year
2018
Maintenance inside
Excellent
Maintenance outside
Excellent

Surface and volume

Living surface
ca. 714m²
Plot surface
ca. 1.872m²
Volume
ca. 3.096m³

Layout

Rooms
11
Bedrooms
7
Number of floors
3

Energy

Energy label
A+++

Exterior areas

Location
Near quiet road, Clear view, Sheltered location
Garden
Backyard
Backyard
West, 500m², 1000×5000cm

Garage

Garage type
Indoor, Indoor

View sun path

Your browser does not support WebGL

Location

Street view
Satellite view
Map view
5 min
10 min
15 min
Travel time
Points of interest

Calculate your travel time

Choose your transport
Maximum travel time
5 min.
10 min.
15 min.
Travel moment
Slow hours
Rush hours
Disable results
Show results

Points of interest

Indicate which points of interest you want to show on the map.

Choose your points of interest
School
Doctor
Pharmacy
Restaurant
Gym
Public transport
Supermarket
Hospital
Church
Dentist
Cinema
Hairdresser
Disable results
Show results

Contact our office for more information or a viewing of Rembrandtweg 30

The form has successfully been sent. We wil contact you as soon as possible.

Unfortunately we can not conclusively determine whether you are a human or an automated bot/spammer. Hence, we are unable to submit the form. Please retry or contact the real estate agent directly via email.

Something went wrong while sending the contact form. Check if you correctly filled in all required fields and try again.

recaptcha
reCAPTCHA
PrivacyTerms