Rotterdam

J.B. Bakemakade 18

€ 2.995 p.m. ex.
bekijk 32 foto's
Verhuur Rotterdam

Verhuur Rotterdam

Omschrijving

Dream of a spacious 4-bedroom family home, in a green and child-friendly neighborhood nearby the center of Rotterdam?
Then make that dream come true right now! Because this 4-LAYER HOUSE with both a SUNNY ROOF TERRACE and CITY GARDEN on the Kop van Zuid, can be yours!

This spacious house with a beautiful view over the Binnenhaven is located in the popular district Stadstuinen, located nearby the Erasmus Bridge. Within walking distance you will find various shops, cozy restaurants, schools, a nursery, several playgrounds, the rear city park and the lively Entrepot area. Tram, bus, metro and train connections are also within walking distance. In no time you are at Rotterdam Central station and on the ring/highways of Rotterdam. The district has an active neighborhood association that regularly organizes fun activities.

This spacious quay offers you a lot of living space. On the ground floor you will find the spacious and luxurious kitchen with a large island (2018). The kitchen is equipped with various built-in appliances and plenty of cupboard space, ideal for the culinary enthusiast. Through patio doors you reach the sunny backyard on the south / west side.
This backyard also has a big storage to place in your bike(s) and a back door.

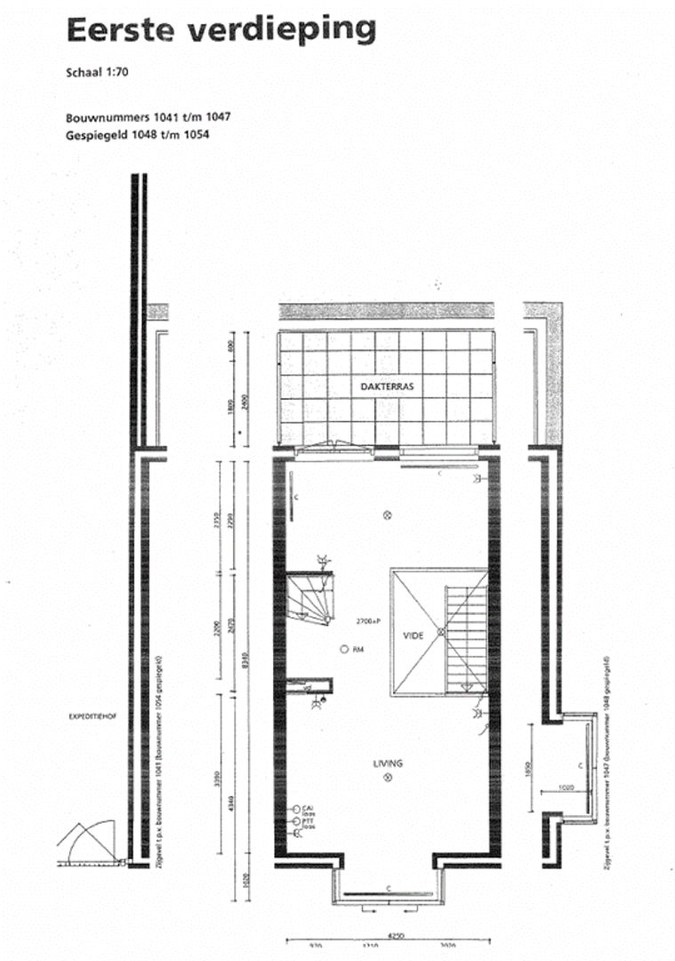
First floor: a spacious and bright living room giving access to the sunny terrace at the rear of the house. The living room also provides a very nice view over the water, The Hefbrug and the red Willemsbrug, which is a beautiful sight at night when the bridge lights up.
Also good to know: This entire floor has floorheating!

Second floor: 2 spacious and bright bedrooms located at the front and rear of the house. Modern toilet is located on this floor as well and of course the modern and complete new bathroom.(2020)
In this bathroom there is a spacious bathtub, walk-in shower and washingbassin.
On this floor there is also a washing room located with the washingmachine.

Top floor: The two remaining bedrooms, (1 master bedroom) and a walk-in wardrobe.

Remarks:
- The rent is excluding heating, water and electricity, television/internet;
- Partly floorheating;
- External storage available;
- Easy to park your car in the street with a parking permit;
- Double glazed;
- Child friendly neighbourhood (playground around the corner, 3 public schools, Child Care)
- Very close to the City Center reachable within a few minutes (tram, subway, bike or car)
- Good connections to highways around Rotterdam (A4, A15, A20, A16, A 13)
- Available for a minimum duration of 12 months;

General information about the area:
Close to the City Center on The South Bank of Rotterdam and situated in a quiet street you will find a comfortable, deliciously light and friendly family house.
De neighbourhood “Kop van Zuid/Entrepot” is a dynamic and fast developing area with a cosmopolitan atmosphere. Close to the ‘hip’ and ‘hot’ quarter Katendrecht with restaurants (French and Italian food and experimental kitchens at the Parisian-like Deliplein), pubs, theatres, and a Food Market. And also a footstep away from the Wilhelminapier with iconic landmarks as “De Rotterdam”, “Montevideo” and “New Orleans”, the highest residential tower in the Netherlands and nicknamed the “Lady on the Warf”, further restaurants, a theatre (New Luxor) and Art Film House LantarenVenster.

Kenmerken

Aanvaarding

Prijs
€ 2.995 p.m. ex.
Inrichting
Gestoffeerd
Status
Beschikbaar
Oplevering
In overleg
Adres
J.B. Bakemakade 18
Postcode
3071 ME
Plaats
Rotterdam

Bouw

Soort woonhuis
Eengezinswoning, Tussenwoning
Soort bouw
Bestaande bouw
Bouwjaar
2000
Onderhoud binnen
Goed
Onderhoud buiten
Goed

Oppervlakten en inhoud

Woonoppervlakte
ca. 160m²
Perceeloppervlakte
ca. 160m²
Inhoud
ca. 358m³

Indeling

Aantal kamers
5
Aantal slaapkamers
4
Aantal verdiepingen
4

Energie

Energielabel
A

Buitenruimte

Ligging
In woonwijk
Tuin
Achtertuin, Achtertuin
Achtertuin
Zuid, 27.97m², 444×630cm

Bekijk het verloop van de zon

Uw browser ondersteunt geen WebGL

Locatie

Straat weergave
Satelliet weergave
Kaart weergave
5 min
10 min
15 min
Reistijd
Voorzieningen

Bereken je reistijd

Kies je vervoer
Maximale reistijd
5 min.
10 min.
15 min.
Reis moment
Daluren
Piekuren
Verwijder resultaten
Toon resultaten

Voorzieningen

Geef hieronder aan welke voorzieningen u op de kaart wil tonen.

Kies voorzieningen
School
Dokter
Apotheek
Restaurant
Sportschool
OV
Supermarkt
Ziekenhuis
Kerk
Tandarts
Bioscoop
Kapper
Verwijder resultaten
Toon resultaten

Meer informatie over J.B. Bakemakade 18 of een bezichtiging aanvragen? Neem contact met ons op.

Uw bericht is naar ons verzonden. Wij nemen zo snel mogelijk contact met u op.

Sorry, we kunnen helaas niet met zekerheid vaststellen of u een mens of een geautomatiseerde bot/spammer bent. Hierdoor kunnen we het formulier dat u heeft ingevuld niet verzenden. Probeer het opnieuw of neem direct contact op met de makelaar via e-mail.

Er is iets mis gegaan met het versturen van het formulier.
Controleer of u alle velden (goed) heeft ingevoerd en probeer het nog een keer.

recaptcha
reCAPTCHA
PrivacyTerms