Den Haag

De Ruijterstraat 49

€ 4.500 p.m. ex.
bekijk 53 foto's
Laurens Vieveen

Laurens Vieveen

Verhuurmakelaar

Omschrijving

This beautiful property has been completely renovated and is situated in an excellent location in the lovely Zeeheldenkwartier area. This spacious, high-end three‑storey upper home offers five bedrooms, three modern bathrooms, and contemporary finishes throughout. The city centre of The Hague, with its wide variety of shops, restaurants, and cafés, is just a short walk away. The property is also conveniently located close to international organisations and highly regarded international schools, making it an ideal home for families and expats. Various public transport connections are around the corner, and both Central Station and major exit roads are easily accessible.

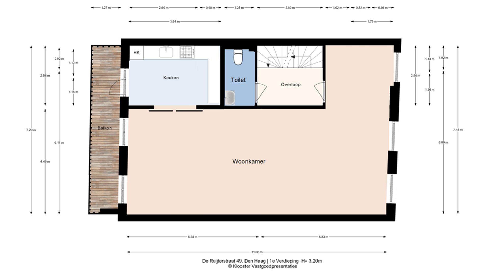
Layout:
Private entrance on the ground floor with internal stairs leading to the main living level.

First Floor
A welcoming landing in the hallway where a separate toilet is located. The floor opens into a beautiful, brand-new kitchen, fully equipped with built‑in appliances. The kitchen features an induction cooktop, combi oven, dishwasher, refrigerator with freezer, and ample storage.

The bright and spacious living room is situated at the front of the property and offers large windows that provide abundant natural light. High-end flooring, sleek recessed lighting, and tasteful finishes create a refined atmosphere. Playful use of glass allows a subtle connection between the living area and the kitchen, enhancing the sense of openness.

Second Floor
Stairs lead to a generous landing that provides access to three well‑proportioned bedrooms. These rooms can serve as children’s rooms, guest rooms, or dedicated workspaces. Two modern bathrooms are located on this level, each featuring a walk‑in shower, washbasin, and a bathtub in one of the bathrooms.

Third Floor
The top floor offers two additional bedrooms. A third bathroom is located on this level, equipped with a walk‑in shower, a washbasin, and modern finishes. A laundry/storage area completes the floor.

This beautiful property is definitely worth a visit!

Remarks:
- Available immediatly
- Rental price excludes utilities, TV & internet
- Available for a minimum of 12 months
- Energy label A
- Recently completely renovated
- Unfurnished
- Deposit of 2 months
- 5 bedrooms and 3 bathrooms
- Within walking distance to the city center
- Sharing is not possible
- Not suitable for pets
 visual

Meer over de buurt

Benieuwd of deze wijk iets voor u is?

Onze makelaars hebben alle informatie over Zeeheldenkwartier voor u op een rij gezet.

Lees meer over Zeeheldenkwartier

Kenmerken

Aanvaarding

Prijs
€ 4.500 p.m. ex.
Inrichting
Gestoffeerd
Status
Beschikbaar
Oplevering
Per direct
Adres
De Ruijterstraat 49
Postcode
2518 AN
Plaats
Den Haag

Bouw

Soort appartement
Bovenwoning
Soort bouw
Bestaande bouw
Bouwjaar
1920
Onderhoud binnen
Uitstekend
Onderhoud buiten
Uitstekend

Oppervlakten en inhoud

Woonoppervlakte
ca. 188m²
Inhoud
ca. 564m³

Indeling

Aantal kamers
6
Aantal slaapkamers
5
Aantal verdiepingen
3

Energie

Energielabel
A

Buitenruimte

Ligging
In centrum

Bekijk het verloop van de zon

Uw browser ondersteunt geen WebGL

Locatie

Straat weergave
Satelliet weergave
Kaart weergave
5 min
10 min
15 min
Reistijd
Voorzieningen

Bereken je reistijd

Kies je vervoer
Maximale reistijd
5 min.
10 min.
15 min.
Reis moment
Daluren
Piekuren
Verwijder resultaten
Toon resultaten

Voorzieningen

Geef hieronder aan welke voorzieningen u op de kaart wil tonen.

Kies voorzieningen
School
Dokter
Apotheek
Restaurant
Sportschool
OV
Supermarkt
Ziekenhuis
Kerk
Tandarts
Bioscoop
Kapper
Verwijder resultaten
Toon resultaten

Meer informatie over De Ruijterstraat 49 of een bezichtiging aanvragen? Neem contact met ons op.

Uw bericht is naar ons verzonden. Wij nemen zo snel mogelijk contact met u op.

Sorry, we kunnen helaas niet met zekerheid vaststellen of u een mens of een geautomatiseerde bot/spammer bent. Hierdoor kunnen we het formulier dat u heeft ingevuld niet verzenden. Probeer het opnieuw of neem direct contact op met de makelaar via e-mail.

Er is iets mis gegaan met het versturen van het formulier.
Controleer of u alle velden (goed) heeft ingevoerd en probeer het nog een keer.

recaptcha
reCAPTCHA
PrivacyTerms