Rotterdam

Librijesteeg 167

€ 512.500 k.k.
bekijk 57 foto's
Aan- en verkoopmakelaar Rotterdam

Aan- en verkoopmakelaar Rotterdam

Omschrijving

Luxe wonen in hartje Rotterdam – City Building aan de Librijesteeg

Wonen in het kloppend hart van Rotterdam? Welkom in City Building, hét adres voor wie houdt van stedelijke levendigheid, moderne luxe en een vleugje exclusiviteit. Dit fantastische appartement aan de Librijesteeg biedt alles wat je zoekt: comfort, stijl én een panoramisch uitzicht over de Binnenrotte en de Meent.

Stel je voor: wakker worden met de ochtendzon die door de grote ramen naar binnen stroomt, terwijl de stad langzaam tot leven komt onder je balkon. Binnen geniet je van een lichte, ruime woonkamer met een moderne open keuken, compleet met inductiekookplaat, koel/vriescombinatie en oven. Twee slaapkamers bieden volop rust en privacy, en de stijlvolle badkamer met inloopdouche en brede wastafel maakt het plaatje compleet.

De eigentijdse afwerking, de open indeling en het overvloedige daglicht zorgen voor een unieke sfeer van ruimte en luxe. Of je nu wilt genieten van een rustige avond thuis of juist de stad in wilt trekken... hier kan het allebei.

De locatie; alles binnen handbereik

Wonen in The City Building betekent leven te midden van het beste dat Rotterdam te bieden heeft.
De Meent en Pannekoekstraat liggen letterlijk om de hoek: dé plekken voor gezellige boetiekjes, trendy koffiebars en toonaangevende restaurants.
Twee keer per week wandel je zo naar de levendige markt op de Binnenrotte, en voor je dagelijkse boodschappen is de supermarkt op loopafstand.

Daarnaast ben je uitstekend bereikbaar:
Station Blaak ligt op slechts enkele minuten lopen, met directe verbindingen naar trein, tram en metro.
De uitvalswegen richting A16 en A20 zijn eenvoudig bereikbaar.

Hier woon je comfortabel, centraal én duurzaam: met energielabel A en alle gemakken van modern stadsleven.

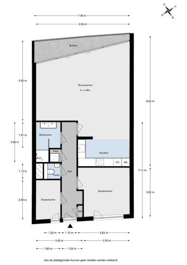
Indeling

* Entree met bellentableau en twee liften
* 4e verdieping: ruime hal, meterkast
* Twee slaapkamers
* Badkamer met inloopdouche en wastafelmeubel
*Royale woonkamer met toegang tot balkon
* Aangrenzende open keuken

Bijzonderheden

* Energielabel A
* Erfpacht afgekocht tot 28 februari 2050
* Privéberging van 7 m²
* VvE-bijdrage: € 250,23 per maand
* Er is een niet-zelfbewoondclausule van toepassing.

Een appartement met karakter, midden in de stad

Dit is niet zomaar een appartement dit is een levensstijl.
Een unieke kans om te wonen op één van de meest gewilde locaties van Rotterdam, waar design, comfort en het bruisende stadsleven naadloos samenkomen.

City Building – Jouw nieuwe thuis in hartje Rotterdam.

Er kunnen geen rechten worden ontleend aan de gegevens, tekst en foto's van dit object.

----

Luxury Living in the Heart of Rotterdam – City Building on Librijesteeg

Living in the vibrant heart of Rotterdam? Welcome to City Building – the perfect address for those who appreciate urban energy, modern luxury, and a touch of exclusivity.
This stunning apartment on Librijesteeg offers everything you’re looking for: comfort, style, and panoramic views over Binnenrotte and Meent.

Imagine waking up to the morning sun streaming through the large windows as the city slowly comes to life beneath your balcony. Inside, you’ll find a bright and spacious living room with a modern open kitchen, fully equipped with an induction cooktop, fridge-freezer, and oven.
The two bedrooms offer peace and privacy, while the elegant bathroom with walk-in shower and wide washbasin completes the picture.

The contemporary finishes, open layout, and abundant natural light create a unique atmosphere of space and luxury. Whether you’re unwinding at home or heading out to explore the city – here, you can have the best of both worlds.

---

The Location – Everything Within Reach

Living in The City Building means experiencing the very best Rotterdam has to offer.
Meent and Pannekoekstraat are just around the corner – lively streets filled with charming boutiques, trendy coffee bars, and popular restaurants.
Twice a week, you can stroll to the bustling Binnenrotte market, and for daily groceries, the nearest supermarket is just steps away.

Accessibility is excellent:
Station Blaak is only a few minutes’ walk, offering direct connections to train, tram, and metro.
Major highways A16 and A20 are easily accessible.

Here, you live comfortably, centrally, and sustainably, with Energy Label A and all the conveniences of modern city life.

Layout

* Entrance with intercom system and two elevators
* 4th floor: spacious hallway and meter cupboard
* Two bedrooms
* Bathroom with walk-in shower and washbasin unit
* Generous living room with access to the balcony
* Adjoining open kitchen

---

Details

* Energy label A
* Leasehold paid off until February 28, 2050
* Private storage room of 7 m²
* Homeowners association (VvE) contribution: €250,23 per month
* Non-owner-occupied clause applies

**An Apartment with Character – Right in the City Centre**

This is more than just an apartment – it’s a lifestyle.
A unique opportunity to live in one of Rotterdam’s most sought-after locations, where design, comfort, and the dynamic rhythm of the city come seamlessly together.

City Building – Your New Home in the Heart of Rotterdam.



*No rights can be derived from the information, text, or photos provided for this property.*

Kenmerken

Aanvaarding

Prijs
€ 512.500 k.k.
Status
Beschikbaar
Oplevering
In overleg
Adres
Librijesteeg 167
Postcode
3011 HN
Plaats
Rotterdam

Bouw

Soort appartement
Galerijflat, Appartement
Soort bouw
Bestaande bouw
Bouwjaar
2003
Onderhoud binnen
Goed
Onderhoud buiten
Uitstekend

Oppervlakten en inhoud

Woonoppervlakte
ca. 83m²
Inhoud
ca. 243m³

Indeling

Aantal kamers
3
Aantal slaapkamers
2
Aantal verdiepingen
1

Energie

Energielabel
A

Buitenruimte

Ligging
In centrum, Vrij uitzicht

Bekijk het verloop van de zon

Uw browser ondersteunt geen WebGL

Locatie

Straat weergave
Satelliet weergave
Kaart weergave
5 min
10 min
15 min
Reistijd
Voorzieningen

Bereken je reistijd

Kies je vervoer
Maximale reistijd
5 min.
10 min.
15 min.
Reis moment
Daluren
Piekuren
Verwijder resultaten
Toon resultaten

Voorzieningen

Geef hieronder aan welke voorzieningen u op de kaart wil tonen.

Kies voorzieningen
School
Dokter
Apotheek
Restaurant
Sportschool
OV
Supermarkt
Ziekenhuis
Kerk
Tandarts
Bioscoop
Kapper
Verwijder resultaten
Toon resultaten

Meer informatie over Librijesteeg 167 of een bezichtiging aanvragen? Neem contact met ons op.

Uw bericht is naar ons verzonden. Wij nemen zo snel mogelijk contact met u op.

Sorry, we kunnen helaas niet met zekerheid vaststellen of u een mens of een geautomatiseerde bot/spammer bent. Hierdoor kunnen we het formulier dat u heeft ingevuld niet verzenden. Probeer het opnieuw of neem direct contact op met de makelaar via e-mail.

Er is iets mis gegaan met het versturen van het formulier.
Controleer of u alle velden (goed) heeft ingevoerd en probeer het nog een keer.

recaptcha
reCAPTCHA
PrivacyTerms