Delft

De Vlouw 58

€ 2.995 p.m. ex.
bekijk 49 foto's
Verhuur Rotterdam

Verhuur Rotterdam

Omschrijving

Beautifully furnished 3-bedroom apartment available with a modern kitchen, bathroom, a very spacious rooftop terrace of 27m2 and a private parking space in the garage!

The location is ideal, right in the historic city centre on the charming Vlouw, just steps away from the Markt, close to Doelenplein and Doelentuin, and within short walking distance of all shops and restaurants.

Within 10 minutes you can walk to the central station and the tram and bus stops. The area is also easily accessible from the highway.

Layout

Entry into the hallway with access to the first (bed)room located on the ground floor. This room is well-sized and very suitable as, for example, a home office. A beautiful herringbone floor provides a modern look. In the hallway on the left side you will have a spacious garage. In the will fitt a car and there will still be storage space.

Via the staircase you reach the first floor, entering the bright and attractive dining and living area.
Both spaces can be separated by a door. The living area features built-in cupboards and an authentic fireplace.
There is plenty of space here to create a comfortable seating area.

The spacious kitchen is equipped with a cooking island and a tall cabinet wall. All necessary appliances are included, such as a Quooker, oven, induction hob with built-in extractor system, refrigerator, separate freezer, and dishwasher. The balcony is accessible from both the kitchen and the living room. A neat decking floor will be added here in addition to what is shown in the current photos.

The separate toilet is accessible from the hallway and features charming green tiles combined with marble-look tiles.

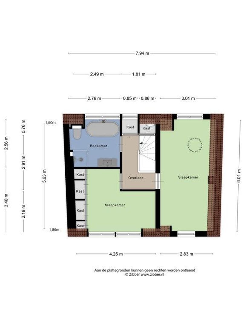
Via the staircase you reach the second floor, where two bedrooms and a bathroom are located.

The master bedroom features a beautiful stained-glass window and again a herringbone floor. There is enough space for a double bed and low storage cabinets.

The second bedroom is also suitable as a bedroom or children's room and includes a built-in wardrobe.

The modern bathroom follows the same style as the toilet and is equipped with a modern bathtub, spacious rain shower, washbasin with cabinet and mirror, and towel radiator.

Remarks:

- The rental price is excluding utilities and municipal taxes;
- Available for a minimum period of 12 months;
- Garage included;
- Security deposit equals 1 month's rent;
- Energy label C applies;
- Due to required permits, not available for 3 home sharers.

In Dutch:

Prachtig gestoffeerd 3-slaapkamer appartement beschikbaar met moderne keuken, badkamer, ruim dakterras van 27m2 en een eigen aansluitende garage!

De ligging is ideaal, midden in de historische binnenstad aan de gezellige Vlouw, op steenworp afstand van de Markt, dicht bij het Doelenplein en de Doelentuin, en met alle winkels en horecagelegenheden op korte loopafstand.

Binnen 10 minuten loop je naar het centraal station en de tram- en bushalte. De locatie is daarnaast goed bereikbaar vanaf de snelweg.

Lay out

Entree in hal met toegang tot de eerste (slaap) kamer gelegen op de begane grond. Deze ruimte is van een goed formaat en zeer geschikt als bijvoorbeeld werkkamer. Een prachtige visgraatvloer is hier aanwezig voor een moderne uitstraling. In de gang aan de linkerkant vindt u een ruime garage. Hier past een auto in en er is nog opslagruimte over.

Via de trap bereikt u de eerste etage en komt u binnen in het mooie en lichte eet- en woongedeelte.

Beide ruimtes zijn af te sluiten middels een deur. Het woongedeelte beschikt over ingebouwde kasten en een authentieke openhaard.

Er is hier voldoende plek om een gezellig zitgedeelte te creëren.

De ruime keuken is voorzien van een kookeiland en hoge kastenwand. Alle benodigde apparatuur is aanwezig zoals, Quooker, oven, Inductiekookplaat met ingebouwd afzuigsysteem, koelkast, aparte vriezer en vaatwasmachine. Vanaf zowel de keuken als de woonkamer is het balkon bereikbaar. Aanvullend op de huidige foto's komt hier nog een nette vlondervloer te liggen.

Het apart toilet is bereikbaar vanuit de hal en is voorzien van gezellige groene tegeltjes en marmerlook tegels.

Middels de trap bereikt u de 2e etage waar twee slaapkamers en een badkamer gelegen zijn. De hoofdslaapkamer is voorzien van een prachtig glas in lood raam en wederom een visgraatvloer. Er is voldoende ruimte voor een tweepersoonsbed en lage kastruimte.

De tweede slaapkamer is ook geschikt als slaapkamer of kinderkamer en is voorzien van een inbouwkledingkast.

De moderne badkamer heeft dezelfde stijl als het toilet en is voorzien van een modern ligbad, ruime regendouche, wastafel met meubel en spiegel en handdoekradiator.

Opmerkingen:

- De huurprijs is exclusief nutsvoorzieningen en gemeentelijke belastingen;
- Beschikbaar voor een minimale duur van 12 maanden;
- Garage aanwezig;
- Waarborgsom staat gelijk aan 1 maand huur;
- Energielabel C van toepassing;
- I.v.m. benodigde vergunning niet beschikbaar voor 3 woningdelers.

Kenmerken

Aanvaarding

Prijs
€ 2.995 p.m. ex.
Status
Beschikbaar
Oplevering
Per direct
Adres
De Vlouw 58
Postcode
2611 EZ
Plaats
Delft

Bouw

Soort woonhuis
Eengezinswoning, Tussenwoning
Soort bouw
Bestaande bouw
Bouwjaar
1932
Onderhoud binnen
Uitstekend
Onderhoud buiten
Uitstekend

Oppervlakten en inhoud

Woonoppervlakte
ca. 139m²
Perceeloppervlakte
ca. 44m²
Inhoud
ca. 361m³

Indeling

Aantal kamers
4
Aantal slaapkamers
3
Aantal verdiepingen
3

Energie

Energielabel
C

Buitenruimte

Ligging
Aan rustige weg, In centrum

Bekijk het verloop van de zon

Uw browser ondersteunt geen WebGL

Locatie

Straat weergave
Satelliet weergave
Kaart weergave
5 min
10 min
15 min
Reistijd
Voorzieningen

Bereken je reistijd

Kies je vervoer
Maximale reistijd
5 min.
10 min.
15 min.
Reis moment
Daluren
Piekuren
Verwijder resultaten
Toon resultaten

Voorzieningen

Geef hieronder aan welke voorzieningen u op de kaart wil tonen.

Kies voorzieningen
School
Dokter
Apotheek
Restaurant
Sportschool
OV
Supermarkt
Ziekenhuis
Kerk
Tandarts
Bioscoop
Kapper
Verwijder resultaten
Toon resultaten

Meer informatie over De Vlouw 58 of een bezichtiging aanvragen? Neem contact met ons op.

Uw bericht is naar ons verzonden. Wij nemen zo snel mogelijk contact met u op.

Sorry, we kunnen helaas niet met zekerheid vaststellen of u een mens of een geautomatiseerde bot/spammer bent. Hierdoor kunnen we het formulier dat u heeft ingevuld niet verzenden. Probeer het opnieuw of neem direct contact op met de makelaar via e-mail.

Er is iets mis gegaan met het versturen van het formulier.
Controleer of u alle velden (goed) heeft ingevoerd en probeer het nog een keer.

recaptcha
reCAPTCHA
PrivacyTerms