Den Haag

Raamweg 12 H

€ 415.000 k.k.
bekijk 37 foto's
Freek Smits

Freek Smits

Aan- en verkoop makelaar RM i.o.

Omschrijving

Stijlvol wonen op een toplocatie in het statige Benoordenhout! Dit charmante appartement van ca. 61 m² met ruim terras is gelegen op de bovenste verdieping en aan de rustige achterzijde van het gebouw. Hier combineer je de levendige ligging nabij het centrum met rust en privacy. Het pand, oorspronkelijk uit 1914, is recent gesplitst en gerenoveerd en biedt een ideale mix van karakteristieke details en modern wooncomfort. Bovendien beschikt het gebouw over een grote gemeenschappelijke tuin, waar je kunt genieten van groen en ontspanning midden in de stad.

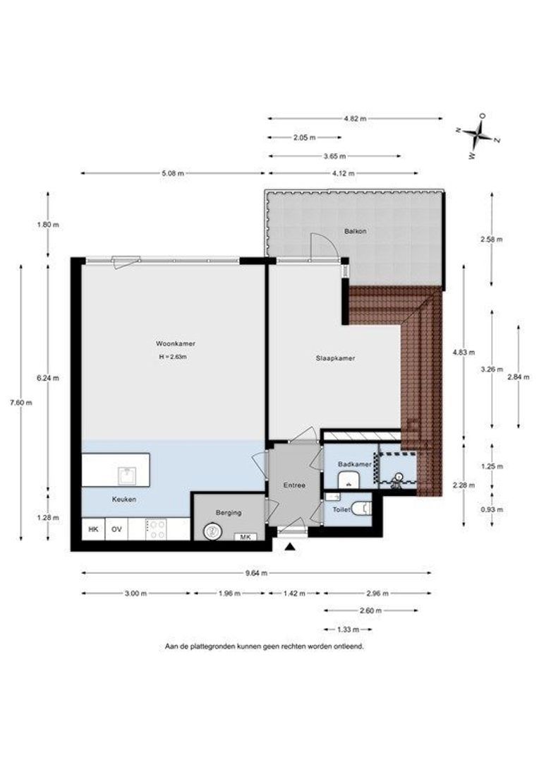
Indeling & appartement
Je betreedt het gebouw via een statige entree met hoge plafonds, een verzorgde hal en toegang tot zowel het trappenhuis als de lift. Bij binnenkomst betreed je de centrale hal met toegang tot alle vertrekken. Direct naast de entree bevindt zich een modern separaat toilet. Aan de voorzijde van de woning ligt de ruime en lichte woonkamer. Grote raampartijen zorgen hier voor veel daglicht en een prettig uitzicht. Dankzij de ligging op de bovenste verdieping en aan de rustige achterzijde geniet je hier van optimale rust en privacy. Grenzend aan de woonkamer bevindt zich de moderne open keuken. Deze is luxe uitgevoerd en voorzien van Whirlpool inbouwapparatuur: een koel-/vriescombinatie, inductiekookplaat, afzuigkap, combimagnetron/oven en vaatwasser. De keuken biedt veel werk- en kastruimte en is zo ontworpen dat koken en gezellig samen zijn naadloos in elkaar overlopen. Aan de achterzijde van het appartement ligt de slaapkamer, die voldoende ruimte biedt voor een tweepersoonsbed en kastruimte. Vanuit de slaapkamer is er direct toegang tot het balkon van ca. 10,7 m², waar je rustig buiten kunt zitten. De badkamer, eveneens bereikbaar vanuit de hal, is luxe afgewerkt met een ruime inloopdouche voorzien van glazen schuifwand en regendouche, een strak wastafelmeubel met spiegelkast en een designradiator. Het gehele appartement is voorzien van comfortabele vloerverwarming en beschikt over mechanische ventilatie. Daarnaast bestaat de mogelijkheid om een airco te plaatsen.

Omgeving
De Raamweg ligt in het geliefde Benoordenhout, om de hoek van het Haagse Bos en op korte afstand van het centrum van Den Haag. Uitvalswegen richting Amsterdam, Rotterdam en Utrecht zijn direct bereikbaar. Ook Scheveningen en het strand liggen op fietsafstand. De buurt staat bekend om haar statige architectuur, groene lanen en een uitstekende mix van rust en bereikbaarheid.

Kenmerken
• In 2019 ontwikkeld en gerenoveerd
• Woonoppervlakte: 61,4 m²
• Energielabel: B
• Bouwjaar: 1914
• Eigen grond
• Vloerverwarming
• Mechanische ventilatie
• Mogelijkheid tot plaatsen van airco
• Modern intercomsysteem met beeld en geluid
• Grote gemeenschappelijke tuin
• Gemeenschappelijke fietsenstalling
• Actieve VvE met 17 appartementen en 1 kantoorruimte
• Professioneel beheerd door professionele beheerder
• MJOP aanwezig
• VvE-bijdrage: €264,57 per maand (op basis van breukdeel 680/13.401e)
• Niet zelf beoningsclausule, materialen clausule en asbest clausule aanwezig.


** English**
Stylish living at a prime location in the prestigious Benoordenhout! This charming apartment of approx. 61 m² with a spacious terrace is situated on the top floor at the quiet rear side of the building. Here you combine the vibrant location near the city center with peace and privacy. Originally built in 1914, the property has recently been divided and renovated, offering an ideal mix of characteristic details and modern comfort. In addition, the building features a large communal garden, providing a green and relaxing escape in the heart of the city.

Layout & apartment
You enter the building through a stately entrance with high ceilings, a well-maintained hall, and access to both the staircase and the elevator. Upon entering the apartment, you step into the central hallway with access to all rooms. Directly next to the entrance is a modern separate toilet. At the front of the apartment lies the spacious and bright living room. Large windows provide abundant daylight and a pleasant view. Thanks to its location on the top floor and at the quiet rear, you enjoy maximum peace and no upstairs neighbors. Adjacent to the living room is the modern open kitchen. This is luxuriously equipped with Whirlpool built-in appliances: a fridge/freezer combination, induction hob, extractor hood, combi microwave/oven, and dishwasher. The kitchen offers plenty of counter and cupboard space and is designed so that cooking and socializing blend seamlessly together. At the rear of the apartment is the bedroom, large enough for a double bed and wardrobe space. From the bedroom, you have direct access to the balcony of approx. 10.7 m², where you can relax outdoors in peace. The bathroom, also accessible from the hall, is finished to a high standard with a spacious walk-in shower with glass sliding door and rain shower, a sleek washbasin with mirror cabinet, and a designer radiator. The entire apartment is fitted with comfortable underfloor heating and also features mechanical ventilation. In addition, there is the possibility to install air conditioning.

Surroundings
Raamweg is located in the popular Benoordenhout district, around the corner from the Haagse Bos and just a short distance from The Hague city center. Major highways towards Amsterdam, Rotterdam, and Utrecht are directly accessible. Scheveningen and the beach are also within cycling distance. The neighborhood is known for its stately architecture, leafy avenues, and an excellent balance of tranquility and accessibility.

Features
• Developed and renovated in 2019
• Living area: 61.4 m²
• Energy label: B
• Year of construction: 1914
• Freehold land
• Underfloor heating throughout
• Mechanical ventilation
• Option to install air conditioning
• Modern video intercom system with image and sound
• Large communal garden
• Communal bicycle storage
• Active homeowners’ association (VvE) with 17 apartments and 1 office unit
• Professionally managed by a property manager
• Multi-year maintenance plan available
• VvE contribution: €264,57 per month (based on a 680/13,401 share)
• Non-occupancy clause, materials clause, and asbestos clause apply
 visual

Meer over de buurt

Benieuwd of deze wijk iets voor u is?

Onze makelaars hebben alle informatie over Benoordenhout voor u op een rij gezet.

Lees meer over Benoordenhout

Kenmerken

Aanvaarding

Prijs
€ 415.000 k.k.
Status
Beschikbaar
Oplevering
In overleg
Adres
Raamweg 12 H
Postcode
2596 HL
Plaats
Den Haag

Bouw

Soort appartement
Appartement
Soort bouw
Bestaande bouw
Bouwjaar
1914
Onderhoud binnen
Goed
Onderhoud buiten
Goed

Oppervlakten en inhoud

Woonoppervlakte
ca. 61m²
Inhoud
ca. 222m³

Indeling

Aantal kamers
2
Aantal slaapkamers
1
Aantal verdiepingen
1

Bekijk het verloop van de zon

Uw browser ondersteunt geen WebGL

Locatie

Straat weergave
Satelliet weergave
Kaart weergave
5 min
10 min
15 min
Reistijd
Voorzieningen

Bereken je reistijd

Kies je vervoer
Maximale reistijd
5 min.
10 min.
15 min.
Reis moment
Daluren
Piekuren
Verwijder resultaten
Toon resultaten

Voorzieningen

Geef hieronder aan welke voorzieningen u op de kaart wil tonen.

Kies voorzieningen
School
Dokter
Apotheek
Restaurant
Sportschool
OV
Supermarkt
Ziekenhuis
Kerk
Tandarts
Bioscoop
Kapper
Verwijder resultaten
Toon resultaten

Meer informatie over Raamweg 12 H of een bezichtiging aanvragen? Neem contact met ons op.

Uw bericht is naar ons verzonden. Wij nemen zo snel mogelijk contact met u op.

Sorry, we kunnen helaas niet met zekerheid vaststellen of u een mens of een geautomatiseerde bot/spammer bent. Hierdoor kunnen we het formulier dat u heeft ingevuld niet verzenden. Probeer het opnieuw of neem direct contact op met de makelaar via e-mail.

Er is iets mis gegaan met het versturen van het formulier.
Controleer of u alle velden (goed) heeft ingevoerd en probeer het nog een keer.

recaptcha
reCAPTCHA
PrivacyTerms