Rotterdam

Beukelsdijk 37 C

€ 2.100 p.m. ex.
bekijk 13 foto's
Lotte Groenenboom

Lotte Groenenboom

Verhuurmakelaar - Vestigingsmanager

Omschrijving

A well maintained apartment of approximately 82 m2 with 2 bedrooms and private parking!

From the living room there is a beautiful view over "Henegouwerplein".
The apartment is perfectly located near public transport and different roads. Within 5 minutes you can reach Rotterdam's main trainstation and within a few minutes by car you will reach the highway A20/A15 or A16.
You will find the citylife literally at your feet, with cozy cafés and trendy restaurants in the direct vicinity.

The building that this apartment is part of was built in 2009 and has a modern architecture, using high-quality and durable materials. All apartments have excellent living comfort and feature a private combi and a ventilation system that is equipped with a heat-recovery system.

Description:
Neat entrance with mailboxes; access to elevators.

Entrance apartment via private hall.
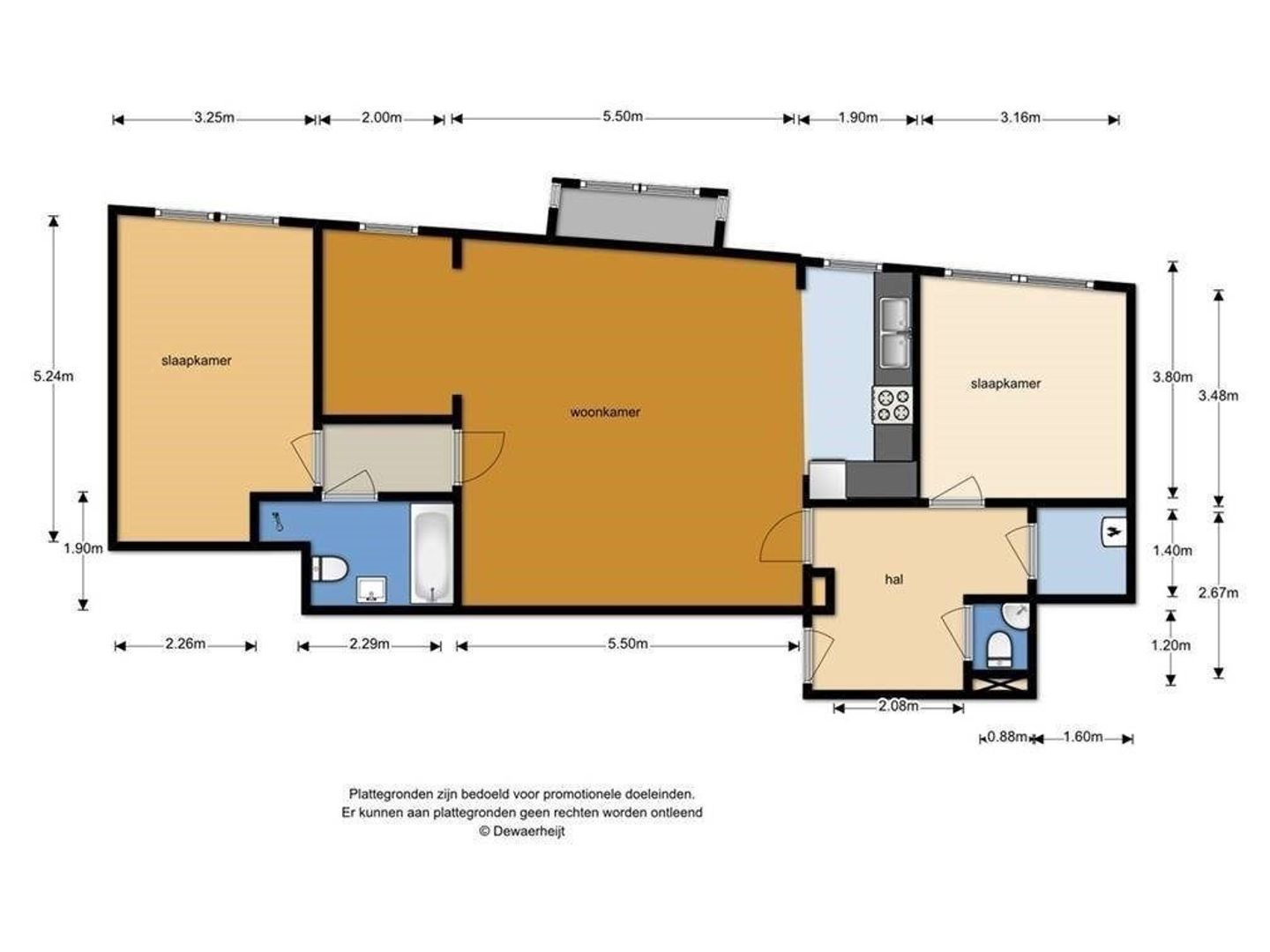
In the hallway you will find a toilet with a small washbasin and a storage room for the heating system. From the hallway there is access to different area's.
Spacious and playful living room with lots of windows which offer an unobstructed view.

An open modern kitchen with corner lay-out which is equipped with various appliances such as a dishwasher, gas cooking hob, fridge, freezer, combi microwave and extractor hood.
From the living room there is access to the master bedroom and bathroom with bath, walk-in shower, design radiator, 2nd toilet, washbasin and modern tiling.
A second bedroom is accessible from the hallway.

Comments:
- The rent is excluding gas, water, electricity, TV/internet and city taxes;
- Minimum rental period of 12 months;
- Private parking for €100,00 per month (mandatory)
- Not suitable for students;
- Energyelabel A applicable;

In Dutch:

Centraal gelegen en licht 2-slaapkamer appartement beschikbaar!

Een goed onder­houden appar­te­ment van circa 82 m2 met 2 slaap­ka­mers en afgesloten parkeer­plaats. Vanuit de woonkamer is er een prachtig uitzicht over het Henegouwerplein.
Het appartement is perfect gelegen ten opzichte van openbaar vervoer en uitvalswegen. Zo bent u binnen 5 minuten op het centraal station van Rotterdam en met uw auto op de ring voor andere richtingen.
Ook het stadsleven ligt letterlijk aan uw voeten, met gezellige cafés en trendy restaurants in omgeving.

Verzorgde entree met postbussen; toegang tot liften. Entree woning via besloten hal.
In de hal treft u een toiletruimte v.v. fonteintje en een inpandige berging v.v. combiketel.

Vanuit de hal is er toegang tot verschillende vertrekken.
Ruime en speelse woonkamer met veel raampartijen die vrij uitzicht bieden.

Een open moderne keuken in hoekopstelling welke is voorzien van diverse apparatuur o.a.: vaatwasmachine, gaskookplaat, koelkast, vrieskast, combimagnetron en afzuigkap.
Vanuit de woonkamer is er toegang tot de hoofdslaapkamer en badkamer voorzien van ligbad, inloopdouche, design radiator, 2e toilet, wastafel en moderne betegeling.
Een tweede slaapkamer is vanuit de hal te bereiken.

Opmerkingen;
- De huurprijs is exclusief gas, water, elektra, TV/internet en gemeentelijke belastingen;
- Minimale huurperiode van 12 maanden;
- Besloten parkeerplaats voor €100,00 per maand (verplichte afname);
- Niet geschikt voor studenten;
- Energielabel A van toepassing;

Kenmerken

Aanvaarding

Prijs
€ 2.100 p.m. ex.
Inrichting
Gestoffeerd
Status
Beschikbaar
Oplevering
15-10-2025
Adres
Beukelsdijk 37 C
Postcode
3021 AC
Plaats
Rotterdam

Bouw

Soort appartement
Appartement
Soort bouw
Bestaande bouw
Bouwjaar
2009
Onderhoud binnen
Goed
Onderhoud buiten
Goed

Oppervlakten en inhoud

Woonoppervlakte
ca. 82m²
Inhoud
ca. 220m³

Indeling

Aantal kamers
3
Aantal slaapkamers
2
Aantal verdiepingen
1

Energie

Energielabel
A

Buitenruimte

Ligging
Aan park, Aan drukke weg, In centrum, Vrij uitzicht, Open ligging

Garage

Soort garage
Parkeerkelder, Parkeerplaats

Bekijk het verloop van de zon

Uw browser ondersteunt geen WebGL

Locatie

Straat weergave
Satelliet weergave
Kaart weergave
5 min
10 min
15 min
Reistijd
Voorzieningen

Bereken je reistijd

Kies je vervoer
Maximale reistijd
5 min.
10 min.
15 min.
Reis moment
Daluren
Piekuren
Verwijder resultaten
Toon resultaten

Voorzieningen

Geef hieronder aan welke voorzieningen u op de kaart wil tonen.

Kies voorzieningen
School
Dokter
Apotheek
Restaurant
Sportschool
OV
Supermarkt
Ziekenhuis
Kerk
Tandarts
Bioscoop
Kapper
Verwijder resultaten
Toon resultaten

Meer informatie over Beukelsdijk 37 C of een bezichtiging aanvragen? Neem contact met ons op.

Uw bericht is naar ons verzonden. Wij nemen zo snel mogelijk contact met u op.

Sorry, we kunnen helaas niet met zekerheid vaststellen of u een mens of een geautomatiseerde bot/spammer bent. Hierdoor kunnen we het formulier dat u heeft ingevuld niet verzenden. Probeer het opnieuw of neem direct contact op met de makelaar via e-mail.

Er is iets mis gegaan met het versturen van het formulier.
Controleer of u alle velden (goed) heeft ingevoerd en probeer het nog een keer.

recaptcha
reCAPTCHA
PrivacyTerms