Rotterdam

Scheepmakerspassage 113

€ 2.350 p.m. ex.
bekijk 23 foto's
Verhuur Rotterdam

Verhuur Rotterdam

Omschrijving

A super cool apartment on the 13th floor of the Red Apple. The apartment is beautifully finished and offers a fantastic view on the city. The apartment is an oasis of tranquility, and from the couch you can enjoy the beautiful view. And if you want to look up the crowds, all you have to do is take the elevator down!

Description
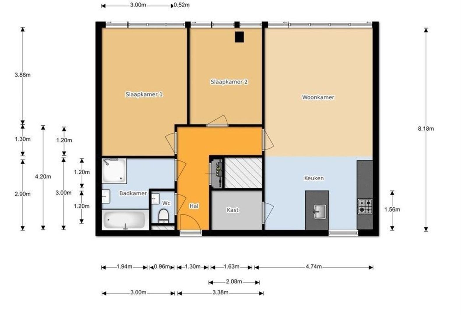
Ground floor
You can enter the Scheepmakerspassage on two sides. This beautiful and high entrance immediately gives you a warm welcome. From here, among other things, the common bicycle shed can be reached. Guests can register via the videophone and the door can be opened. You can reach the parking and residential floors via one of the two elevators.

Apartment:
Entrance, hallway / corridor with wardrobe, toilet with hand basin.
The fantastic living room gives you a magnificent view of the city and De Maas. You can enjoy many beautiful buildings that Rotterdam has to offer including De Willemsbrug.

The living room has ceiling-high windows, so you can enjoy the view from the couch. The open kitchen is very luxurious and equipped with all modern conveniences, including a fridge, freezer, combi oven / microwave. From the kitchen you have access to the storage room / utility room, where you will also find the washing machine.

The apartment has two spacious bedrooms, both with the beautiful view and fully furnished.
The beautiful bathroom has a separate shower, sink and bathtub.

Comments:
- The rent is excluding heating, water. electricity, TV/internet and city taxes;
- The entire house has underfloor heating and floor cooling;
- Pets are not allowed;
- Available for a minimum of 12 months;
- Energylabel A;
- Deposit is equal to one months rent;
- No parking possibility.

In Dutch:

Een supertof, volledig gemeubileerd 3-kamer appartement op de 13e verdieping van de Red Apple. Het appartement is prachtig afgewerkt en biedt u fantastisch uitzicht over de stad. Het appartement is een oase van rust, en vanaf de bank kunt u genieten van het prachtige uitzicht. En als u de drukte wilt opzoeken, hoeft u alleen maar de lift naar beneden te pakken!

Indeling:
Begane grond
Aan twee zijden kunt u binnenstappen in de Scheepmakerspassage. Deze mooie en hoge entree geeft u direct een warm welkom. Vanuit hier is onder andere de gemeenschappelijke fietsenstalling te bereiken. Via de intercom kunnen gasten zich aanmelden en kan de deur geopend worden. Via één van de twee liften bereikt u de parkeer- en woonverdiepingen.

Indeling appartement
Entree, hal/gang met garderobe, via de gang toegang tot de badkamer, 2 slaapkamers en woonkamer.

De fantastische woonkamer geeft u magnifiek uitzicht over de stad en De Maas. U kunt genieten van tal van mooie gebouwen die Rotterdam rijk is met onder andere De Willemsbrug.

De woonkamer beschikt over plafondhoge ramen, dus u kunt vanaf de bank genieten van het uitzicht. De open keuken is zeer luxueus en voorzien van alle gemakken, met o.a. een koelkast, vrieskast, combi-oven/-magnetron. Vanuit de keuken heeft u toegang tot de inpandige berging/bijkeuken, Hier vindt u tevens de wasmachine.

Het appartement beschikt over twee ruime slaapkamers, beiden met het prachtige uitzicht en voorzien van meubilair.
De prachtige badkamer is voorzien van een aparte douche, wastafel en heerlijk ligbad. Het toilet is separaat en voorzien van een fonteintje.

Opmerkingen:
- De huurprijs is exclusief verwarming, water, elektriciteit, TV/internet en gemeentelijke belastingen;
- De gehele woning is voorzien van een laminaatvloer met vloerverwarming én vloerkoeling;
- Huisdieren zijn niet toegestaan;
- Beschikbaar voor een minimale duur van 12 maanden;
- De waarborgsom staat gelijk aan 1 maand;
- Er is geen parkeergelegenheid;
- Energielabel A.

Kenmerken

Aanvaarding

Prijs
€ 2.350 p.m. ex.
Inrichting
Gemeubileerd
Status
Verhuurd
Oplevering
Per direct
Adres
Scheepmakerspassage 113
Postcode
3011 VH
Plaats
Rotterdam

Bouw

Soort appartement
Appartement
Soort bouw
Bestaande bouw
Bouwjaar
2009
Onderhoud binnen
Goed
Onderhoud buiten
Goed

Oppervlakten en inhoud

Woonoppervlakte
ca. 86m²
Inhoud
ca. 270m³

Indeling

Aantal kamers
3
Aantal slaapkamers
2
Aantal verdiepingen
1

Energie

Energielabel
A

Buitenruimte

Ligging
In woonwijk

Bekijk het verloop van de zon

Uw browser ondersteunt geen WebGL

Locatie

Straat weergave
Satelliet weergave
Kaart weergave
5 min
10 min
15 min
Reistijd
Voorzieningen

Bereken je reistijd

Kies je vervoer
Maximale reistijd
5 min.
10 min.
15 min.
Reis moment
Daluren
Piekuren
Verwijder resultaten
Toon resultaten

Voorzieningen

Geef hieronder aan welke voorzieningen u op de kaart wil tonen.

Kies voorzieningen
School
Dokter
Apotheek
Restaurant
Sportschool
OV
Supermarkt
Ziekenhuis
Kerk
Tandarts
Bioscoop
Kapper
Verwijder resultaten
Toon resultaten